projects
about
contact
projects
about
contact
s-n-d.co sean nakamura dolan
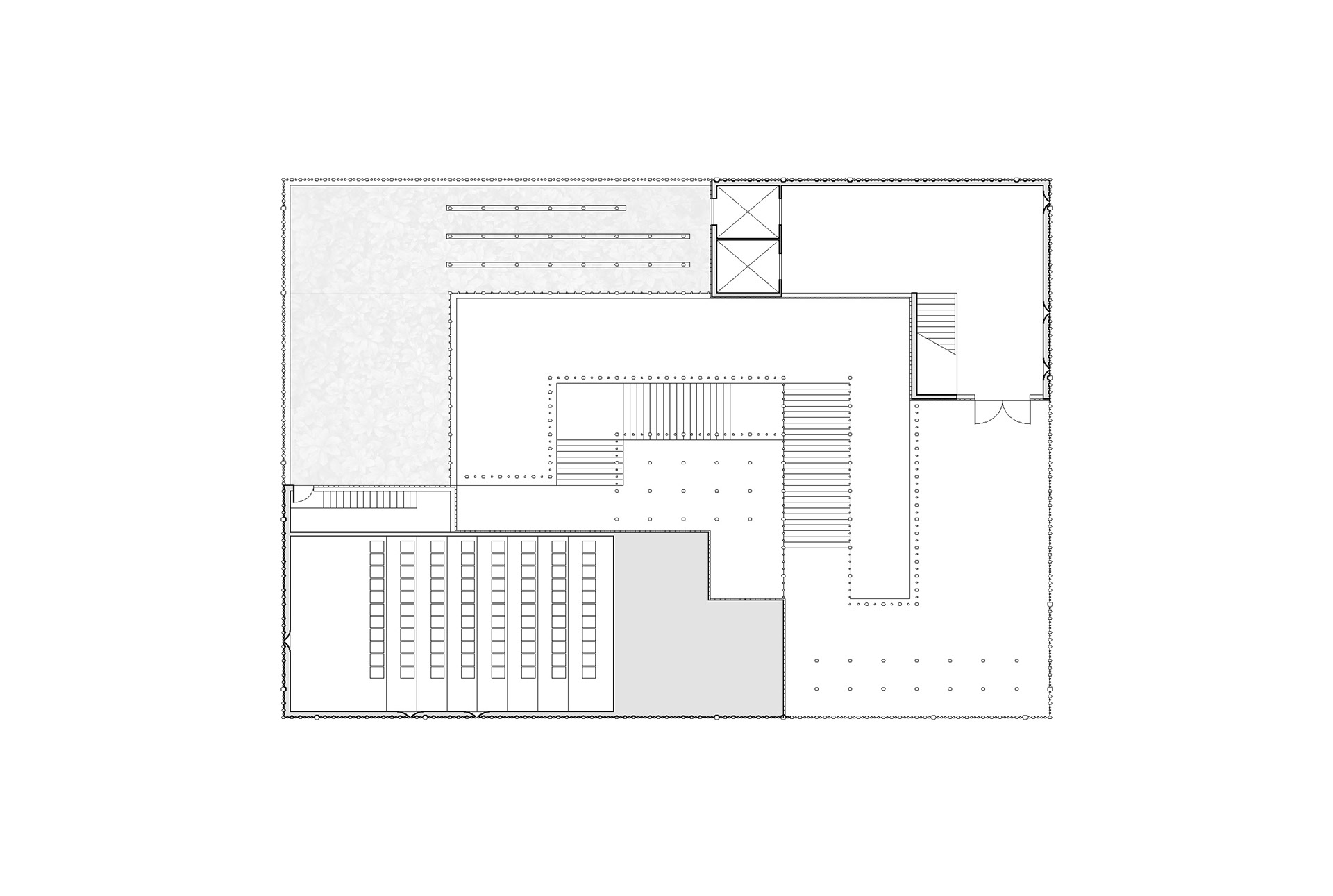
In-Between
Good Food
2016 - UC Berkeley - Instructor: Lisa Iwamoto
The columns create a gradient between solid and void; controls the permeance of light into the building.
↑
Back to Top