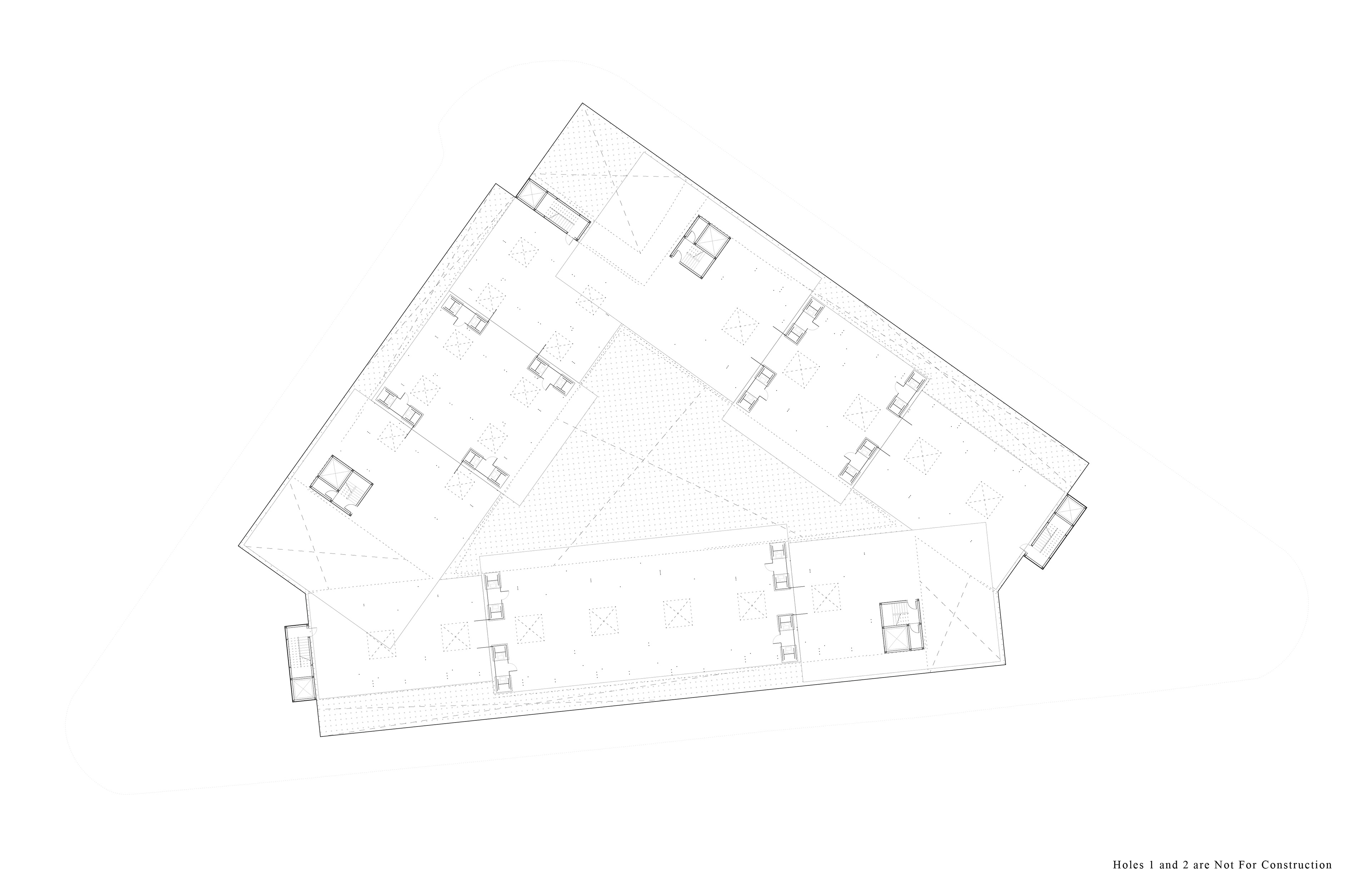
Holes 1 and 2 are Not For Construction
Project Partner: Liam Cook
2021 - Harvard GSD Core IV - Instructor: Michelle Chang
Holes bound by thinness afford collective living that perceives community through sound.
We often focus our social attention on people at a distance, through digital communication, but in this proposal, occupants are aware of the physical presence of people in the same building as them. Sound travelling through the housing project is controlled to connect people, creating an energizing awareness for inhabitants that they are living with others. Neighbors and public visitors are sensed through the building, as anonymous architectural character. The expected emphasis on the ocularcentric aspects of housing design is deprioritized.
In order to achieve this acoustic modulation, the project is constructed from thin planes. Material is at times left as a single sheet to conduct sound, and at other times built up to create pockets of quietude and reverberation.
However, thinness is also explored tectonically; a language of folding, bending, panelization, and misaligned lapping is expressed at every scale of the project, from the details to the massing. Thinness is constantly revealed.
The housing is sandwiched by vast, unconditioned spaces: Holes 1 and 2. Hole 1 is a public park at the top of the building, full of air, breeze, and the sound of precipitation. Hole 2 is a mechanical and gathering space for the inhabitants, below the housing, filled with humming machinery and scattered pipes. Both seem barely constructed. Both are generous atmospheric destinations.
In section, hole 1, four units, and hole 2 are arranged around vertical acoustic channels that bring the sounds of the collective spaces into the centers of the units. Yet in each unit, the hollow soundwell seems completely solid, and is perceived as a strange 10x10 foot gyp board monolith. It fills the plan as a constant roommate. The presence of neighbours, the park above, and the communal space below are all contained in this murmuring object.




























































